فونداسیون پایه چراغ

فونداسیون پایه چراغ یک نوع زیرسازی برای پایههای چراغهای باغی ؛پارکی؛ محوطهای؛ ویلایی و بخشهای مختلف میباشد که باعث استحکام و ثبات چراغها در معابر میشود.
از مهمترین ویژگیهای فونداسیونها میتوان مقاومت در برابر عوامل جوی؛ بازده نوری بالا؛ امکان تنظیم نور اشاره کنیم .
ابعاد فونداسیون پایه چراغ
ابعاد فونداسیون پایه چراغ بر اساس فاکتورهای مختلفی تعیین میشود از جمله این فاکتورها به موارد زیر میتوان اشاره کرد:
ابعاد فونداسیون پایه چراغ بر اساس نوع خاک که در این نوع معمولاً خاک میتواند به صورت ماسه؛ شن یا خاک رس باشد و ابعاد مختلفی از نظر عمق و قطر فونداسیون را نیاز داشته باشد.
ابعاد فونداسیون پایه چراغها بر اساس شاخص های مختلفی تعیین می شوند از جمله:
- نحوه بارگذاری
- وزن چراغ
- میزان بار برف
- میزان وزش باد و…
اندازه استاندارد فونداسیونهای پای چراغهای خیابانی

پایه چراغ خیابانی به صورت عمومی تر دارای ابعاد 6متری، 9متری، 12 متری میباشد.
ابعاد فونداسیون پایه چراغ 3متری(پارک و خیابانی) :
مکعب مستطیل با ابعاد 35*35*40 سانتی متر میباشد.
فونداسیون پایه چراغ ۶ متری:
ابعاد صفحه بالا٣٠*٣٠_ ابعاد صفحه پایین۵٠*۵٠_ ارتفاع ۷۰ سانتیمتر میباشد
فونداسیون پایه چراغ ۹ متری:
برای صفحه بالا ۴۰ * ۴۰ سانتیمتر_ ابعاد صفحه پایینی ۶۰ * ۶۰ سانتیمتر_ ارتفاع یک متر میباشد.
ابعاد فونداسیون پایه چراغ ۱۲ متری:
برای مکعب مستطیلی با صفحه ۶۰ * ۶۰ و ارتفاع ۱۴۰ سانتیمتر میباشد.
نکته:
در زمان تهیه فونداسیون پایه چراغها بهتر است تا از فونداسیونها با پایههای قوی استفاده کنید. هرچه فونداسیون قویتر باشد طول عمر و استقامت آن بیشتر است. مثلاً اگر پایه چراغی ۱۰ متری دارید باید برای آن از فونداسیونهای پایه ۱۲ متری استفاده کنید.
ابعاد و اندازه استاندارد فونداسیون پایه چراغ پارکی

ابعاد فونداسیون پای چراغ پارکی به عوامل متعددی بستگی دارد. اما اندازههای استاندارد معمولاً عبارت است از:
- قطر فونداسیون در حدود ۶۰ تا ۹۰ سانتیمتر
- عمق فونداسیون حدود ۶۰تا ۹۰ سانتیمتر با توجه به نوع خاک و توزیع وزن ممکن است این عمق تغییر کند.
- ارتفاع فونداسیون پایه چراغ پارکی ۱۰ تا ۳۰ سانتیمتر میباشد.
البته باز بهتر است تا پیش از اقدام به حفر فونداسیون ابعاد دقیقتر را ابا متخصص و تکنسین روشنایی مورد بررسی قرار دهید.
ابعاد و اندازه فونداسیون پایه چراغ باغی
ابعاد فونداسیون پایه چراغ باغی هم مانند سایر چراغهای دیگر به عوامل مختلفی بستگی دارد. اما ابعاد استاندارد آن شامل:
- قطر فونداسیون باید در حدود ۳۰ تا ۵۰ سانتیمتر باشد.
- عمق فونداسیون باید حدود ۳۰ تا ۵۰ سانتی مترباشد که ممکن است بر حسب نوع خاک و وزن چراغ تغییر کند.
- ارتفاع فونداسیون پایه چراغ باغی هم چیزی حدود ۱۰ تا ۲۰ سانتیمتر است.
برای اطلاع از ابعاد دقیقتر بهتر است تا با متخصص و مهندس روشنایی مشورت کنید. چرا که ممکن است ویژگیهای خاص هر محیط با نیازهای محوطه در هر محیط جغرافیایی متفاوت باشد.
ابعاد فونداسیون بر اساس شرایط جوی

مثل مناطق سرد و برفی یا مناطقی که دارای گرمای زیاد و تغییرات دمایی میباشد باید مشخص شود.
ابعاد فونداسیون پایه چراغها بر اساس استانداردها و ضوابط که میتواند این استانداردها حداقل ابعاد را برای فونداسیون مشخص کند.
ابعاد فونداسیون پایه چراغها بر اساس نوع و اندازه چراغها
نوع و اندازه چراغها ممکن است بر ابعاد فونداسیونها تاثیرگذار باشد. مثلاً چراغهای بزرگتر نیاز به فونداسیونهای بزرگتر داشته باشند.
تعیین ابعاد فونداسیون پایه چراغها نیازمند تحلیل و بررسی مراحل مختلفی میباشد.
ابعاد فونداسیون پایه چراغ در مناطق بادخیز
معمولا ابعاد فونداسیونهایی که برای مناطق بادخیز در نظر گرفته میشوند؛ دارای ابعاد و ضخامت بیشتری هستند.
از مصالح سنگینتر و مقاومتری مثل بتن و فولاد با کیفیت استفاده میکنند. معمولاً ابعاد این فونداسیونها بر اساس شرایط استاندارد آب و هوایی تعیین میشود.
ضمن اینکه به خاطر اینکه طوفانهای فصلی و بادهای شدید دارای سرعت زیادی هستند وزن پایهها باید بالاتر از حد استاندارد باشد یا مثلاً در مناطق زلزله خیز باید ابعاد فونداسیون بزرگتر در نظر گرفته شود تا استقامت آن تقویت شود.
قیمت فونداسیون آماده پایه چراغ
قیمت فونداسیون آماده پایه چراغ به عوامل مختلفی مانند ابعاد فونداسیون، نوع بتن مصرفی، میزان میلگرد، نوع صفحهپلیت و همچنین ارتفاع و وزن پایه چراغ بستگی دارد. معمولاً فونداسیونهای آماده به دلیل تولید در محیط کنترلشده کارگاهی، کیفیت بالاتری داشته و در زمان نصب نیز سرعت کار را افزایش میدهند.
در پروژههای شهری، استفاده از فونداسیون آماده هزینههای اجرایی را کاهش داده و باعث افزایش دقت در نصب میشود. برای دریافت قیمت دقیق، باید ابتدا نوع پایه چراغ (پارکی، خیابانی، محوطهای یا باغی) و ارتفاع آن مشخص شود.
نکات مهم در زمان استفاده از فونداسیون پایه چراغها

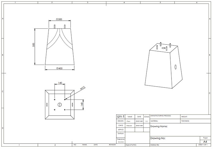
نقشه فونداسیون پایه روشنایی
نقشه فونداسیون پایه روشنایی شامل اطلاعاتی مانند محل قرارگیری صفحهپلیت، ابعاد فونداسیون، مقدار عمق، نوع آرماتورگذاری، محل عبور کابل و نحوه اتصال پایه به فونداسیون است.
این نقشهها توسط مهندسین سازه و روشنایی طراحی میشود تا پایه چراغ بتواند در برابر باد، بار، رطوبت و عوامل محیطی مقاوم باشد. وجود نقشه دقیق اولین قدم برای اجرای اصولی و استاندارد فونداسیون محسوب میشود.
دیتیل فونداسیون پایه چراغ
دیتیل فونداسیون پایه چراغ شامل جزئیات ریز مربوط به ابعاد، ضخامتها، نوع میلگرد مصرفی، فواصل میلگرد، نوع بتن، محل نصب بولتها و عمق قرارگیری فونداسیون در خاک است.
دیتیلها معمولاً در نقشههای فنی بهصورت دقیق مشخص میشوند و رعایت آنها در زمان اجرا باعث جلوگیری از مشکلاتی مثل کجشدن پایه، عدم تراز بودن صفحهپلیت، یا عدم تحمل فشار باد میشود.
نقشه اتوکد فونداسیون پایه روشنایی
برای پروژههای مهندسی، نقشه اتوکد فونداسیون پایه روشنایی یکی از فایلهای ضروری است و معمولاً توسط واحد فنی تولیدکنندگان پایه چراغ ارائه میشود.
این نقشهها به مجریان کمک میکند:
-
جایگذاری دقیق فونداسیون
-
بررسی ابعاد صفحهپلیت
-
کنترل بولتها و آرماتور
-
هماهنگی بهتر با سایر بخشهای پروژه
فایلهای اتوکدی امکان ویرایش و تطبیق با شرایط مختلف پروژه را نیز فراهم میکنند.

در موقع ساخت و نصب فونداسیونها باید تمامی اصول ساخت و اصول نصب رعایت شود. در این خصوص باید دستورالعملهای تولید کننده روش ساخت بهبود عملکرد و طول فونداسیون تضمین شود.
پیش از شروع به کار ارتفاع فونداسیون؛ عمق فونداسیون؛ عرض فونداسیون باید تایید شود.
ابعاد فونداسیون پایه چراغ به گونهای باشد که در ارتفاع مطلوب و مناسب از سطح زمین قرار بگیرد.
در موقع ساخت فونداسیونها باید از مواد و مصالح ساختمانی مناسب استفاده شود. از موادی مثل: بتن؛ بلوکهای بتنی که بتواند وزن و فشار چراغها را تحمل کند و استحکام کافی داشته باشد.
عمق فونداسیونها باید به صورتی باشد که نسبت به نیروهای جانبی و فشار خاک قدرت مقاومی داشته باشد. معمولاً هم عمق فونداسیون برای پایه چراغها بین ۳۰ تا ۵۰ سانتیمتر مناسب است.
استفاده از تسمههای فولادی در فونداسیون پایه چراغها باعث بهبود استحکام و پایداری پایه چراغها میشود .معمولاً تسمهها به صورت حلقهای دور فونداسیون قرار میگیرند و باعث ایجاد اتصال جامد بین زیرساخت و ساختار خواهند بود.
در صورتی که تمایل دارید اطلاعات بیشتری کسب کنید مقاله نصب چراغ پارکی را بخوانید.

فونداسیون تیر چراغ برق
فونداسیون تیر چراغ برق یکی از مهمترین بخشهای نصب سیستم روشنایی معابر است. این فونداسیونها معمولاً عمق بیشتری نسبت به پایه چراغهای پارکی دارند و باید توان تحمل نیروهای شدید باد و کشش کابلها را داشته باشند.
در تیرهای چراغ برق، استفاده از بتن مقاوم و میلگردهای تقویتی الزامی است تا پایه در شرایط سخت محیطی دچار شکست یا انحراف نشود.


